Individuele handelszaak
€ 1.500

Londenstraat 42 Bglv, 2000 Antwerpen
    • delen

Omschrijving Ref.: 7557118

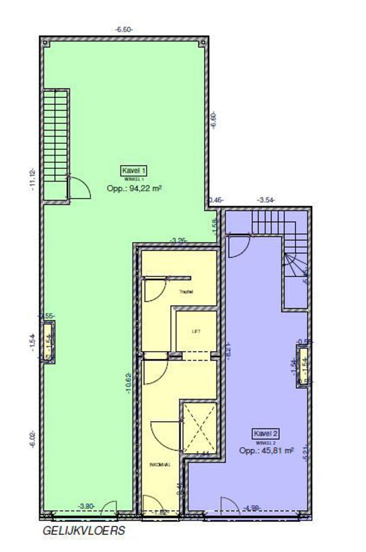
Gelegen in de Londenstraat met tramhalte voor de deur ruimte van +/-100 m² geschikt voor kantoor of winkel opgelet!!!! geen horeca ruimte voorzien van kitchenette , toilet en ruime kelder direct beschikbaar prijs 1500 € + 100 € gemeenschappelijke kosten wordt verhuurd al POP UP te bespreken plan groen zie foto


Uw contact

Vragen over deze eigendom ref: 7557118
contact

Details van het pand

Financieel

Prijs
€ 1.500,00/maand
Beschikbaarheid
Onmiddellijk

Ligging

Buurt
Centraal, centraal

Gebouw

Oppervlakte
100,00 m²
Aantal gevels
2
Staat
Uitstekend
Aantal verdiepingen
4
Breedte vitrine
5,00 m
Oppervlakte hoofdgebouw
100 m²
Oriëntatie voorgevel
Noord

Terrein

Grondoppervlakte
100,00 m²

Parkeermogelijkheden

Parkings buiten
Nee
Parkings binnen
Nee

Indeling

Keuken
5,00 m²
Toiletten
1

Specifieke ruimtes

Toiletten M/V
Ja (3)

Energie

Ramen
Aluminium

Stedenbouw

O-peil
Niet gelegen in een overstromingsgevoelig gebied
G-score
B
P-score
B

Meer info over deze eigendom

Bedankt voor je bericht, we contacteren je zo spoedig mogelijk.
Er was een probleem bij het versturen van het formulier, gelieve opnieuw te proberen.
(*) Gelieve de verplichte velden in te vullen.